mu:sta(ムスタ)
045-275-1497
トップページ
音楽室
リハーサルスタジオ
レコーディング
スタジオ
AVルーム
体験型
モデルルーム
WORKS
ご依頼の流れ
会社案内
Contact
News
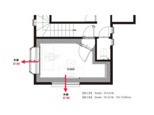
web用_岩本様平面図
ホーム
お知らせ一覧
web用_岩本様平面図
一覧へ戻る