神奈川県・K.I様

施主のK.I様は、エレキギターやオーディオを趣味として楽しんでおられ、閑静な住宅地に建つご自宅でも大きな音で音楽を楽しみたいと考えていらっしゃいました。
YouTubeをきっかけにムスタを知っていただき、お問い合わせをいただいたのが始まりです。
音楽を思い切り楽しみたいという施主様の想いを、デザインと性能の両面から形にした防音室となりました。

ご要望について
⚫︎周囲のご家庭やご家族に配慮しながら防音性能を高めたい
⚫︎大きな窓は残して開放感を確保したい
⚫︎青系を取り入れた爽やかなインテリアにしたい


【設計のポイント①】
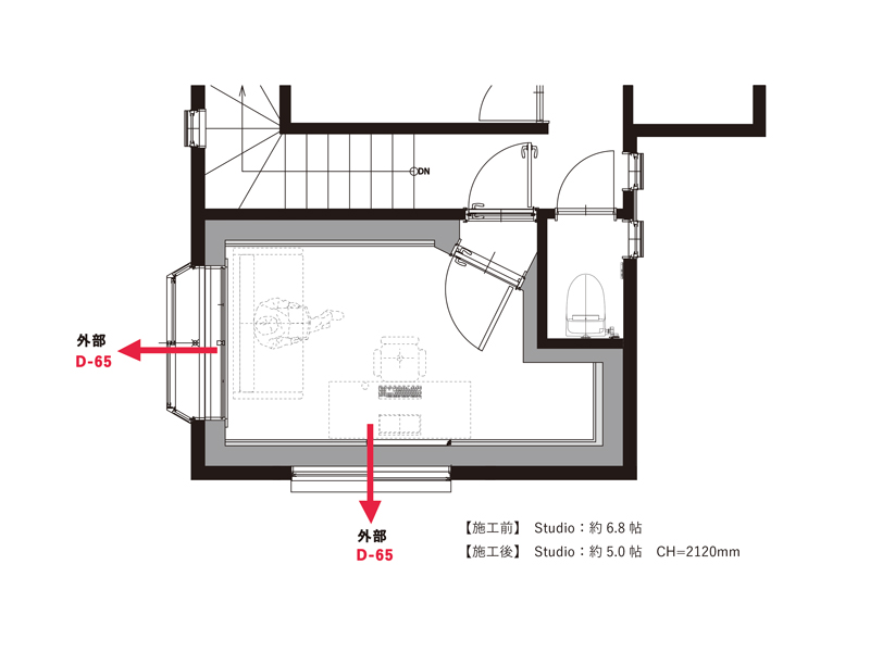
木造住宅かつ大きな窓という条件の中、可能な限り防音性能を高め、外部でほぼ無音に近い遮音性能(D-65)を実現しました。
【設計のポイント②】
元々の引き違い窓は遮音性が弱いため、防音室側にはFIX窓を採用。格子デザインを加えることで、遮音性とデザイン性を両立しました。
【設計のポイント③】
内装は青と白を基調に、爽やかで開放感のある空間に。さらにオーダーメイドの大きな鏡を設置することで、圧迫感を軽減しています。演奏もリスニングも、今まで以上に楽しくなる空間となりました。
Before&After


